13 Gemeinschaftsraum Unterstrass
Zürich, 2023 - 2024
Die Gemeinnützige Baugenossenschaft Selbsthilfe Zürich möchte bestehende Räume im Tiefparterre eines Mehrfamilienhauses als Gemeinschaftsraum nutzen. Die bestehende Struktur aus einer Ansammlung kleinteiliger Räume weist eine feste Zuteilung verschiedener Nutzungen auf. Wie gelingt die Verwandlung hin zum grosszügigen, flexibel nutzbaren Gemeinschaftsraum?
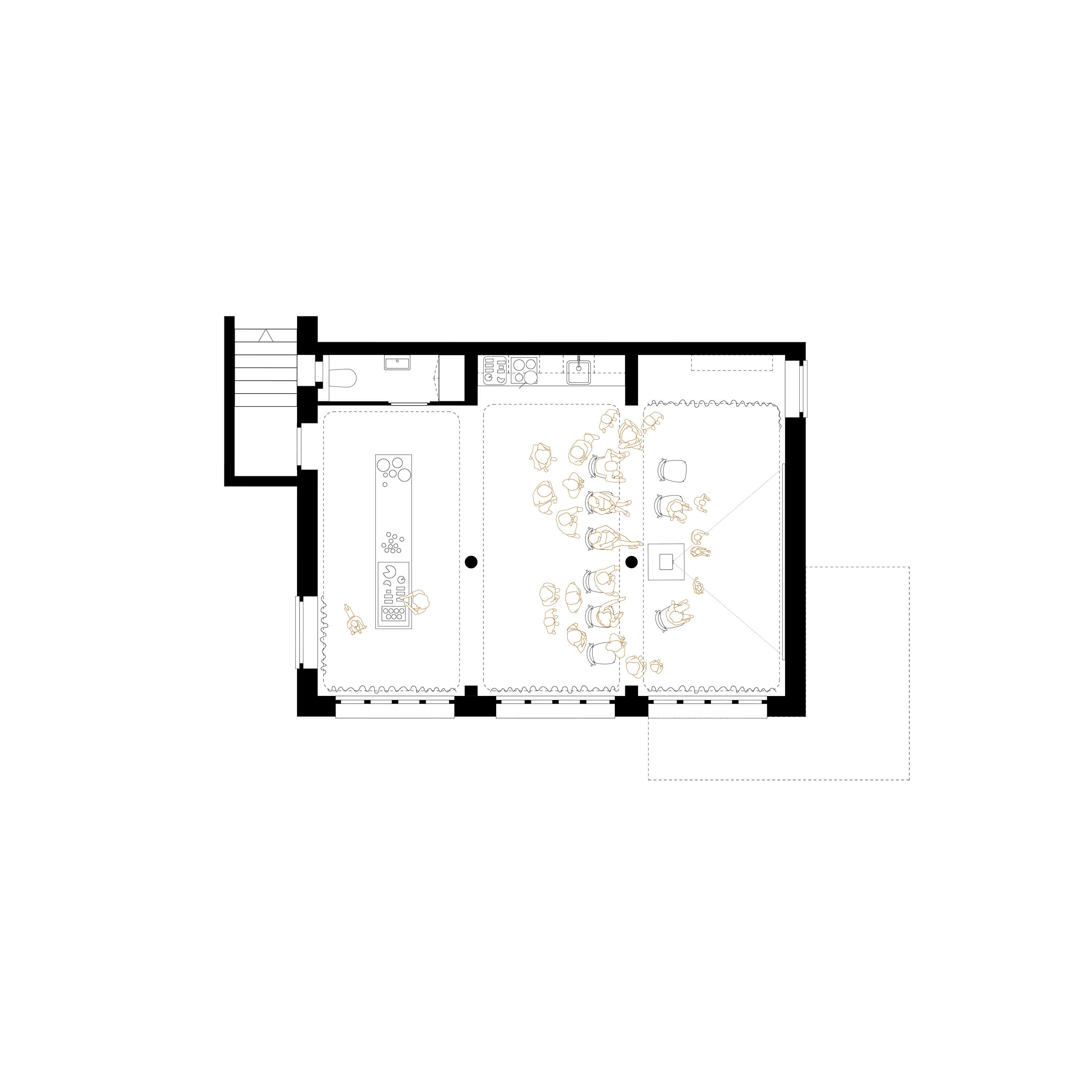
Die kleinteilige Raumfolge wird in zwei Unterzüge mit je einer Stütze aufgelöst. Es entstehen drei Kammern mit je einer Nische. Die erste Nische umfasst den Eingangsbereich mit Garderobe und Toilette. In der zweiten Nische ermöglicht eine Küche gemeinsames Kochen. Und in der dritten Nische nimmt ein Reduit überzählige Stühle und Tische auf. Jede Raumkammer wird mit einer umlaufenden Vorhangschiene ausgestattet, die es ermöglicht, die drei Kammern voneinander abzutrennen. Aus dem grossen Raum entstehen zwei, aus zwei Räumen entstehen drei und aus den drei Räumen wieder einer.
Auftraggeber: Gemeinnützige Baugenossenschaft Selbsthilfe

Gemeinschaftsraum Unterstrass

Gemeinschaftsraum Unterstrass

Sitzung, Gemeinschaftsraum Unterstrass

Yogakurs, Gemeinschaftsraum Unterstrass

Kinoabend, Gemeinschaftsraum Unterstrass

Materialisierungskonzept, Gemeinschaftsraum Unterstrass